比較資料
カートへ入れる
比較表
作成する

マッドマックス泥土圧式

2026/02/19 更新

概要

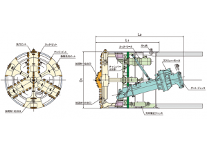
土圧式推進工法は、前部が隔壁で密閉された土圧式掘進機のカッタチャンバー内に   掘削土砂あるいは掘削土砂と添加材の撹拌混練り土砂(泥土)を充満させ、土砂の圧力を切羽の土圧及び地下水圧に見合う 圧力に保持する事により切羽の安定を図る。

また、カッタヘッドの回転により掘削した土砂をスクリュコンベアで排土量を調整しながら、立坑に設けた元押しジャッキの 推進力により推進管を推進、埋設する工法である。 掘削土砂の排出は、トロバケット方式、圧送ポンプ方式又は、吸泥排土方式により行う。

土圧式推進工法は、添加材注入の有無により土圧推進工法と泥土圧推進工法に分類される。なお、添加材注入は、一般にシルト、粘土の含有率が30%未満の場合に、掘削土砂の塑性流動化を促進させるために行う。

続きを見る

youtubeを見る お問い合わせ
お気に入りに登録
カートへ入れる

期待される効果

●掘進機の特徴
1.粘性土~玉石層、硬質土まで施工可能。
2.掘削から排土、固化処理までシステム化。連続作業が可能である。
3.地上設備が少なくて済み、狭いヤードでの施工が可能。
4.スクリュウコンベアを分解搬入する事により、小立坑での投入が可能。
5.機長が短く、又コピーカッター(φ2000mm以上)の併用により急カーブ推進が可能。
6.人孔到達用の掘進機を用いる事によって機器類を100%回収する事ができる。
7.φ1000mm以上の呼び径に対して、吸泥排土方式により施工が可能。
8.SMCシステムにより長距離施工が可能。

施工事例・施工実績

施工手順

カタログ

マッドマックス泥土圧式 カタログ

会社情報

会社名
ジオリード協会
TEL
06-6227-0807
企業情報
公式サイト

このカテゴリーでよく比較される工法

!

エラーが発生しました。

次のいずれかの理由が考えられます。

比較可能な数量を超えたため
カートに追加できませんでした。
比較できる点数は20点までです。
「工種・工法」と「資材」を同時に
比較することはできません。
カート内を整理してご利用ください。
2点以上をカートに追加してください。
カート内容を確認する
!

カートへの追加
ありがとうございます。

会員登録をすれば、
カートに入れた製品の
比較表のダウンロードができます。

会員の方はこちら(ログイン) 新規会員登録
!

お気に入り登録
ありがとうございます。

会員登録をすれば、マイページより
いつでもお気に入り登録した商品を
見返すことができます。

会員の方はこちら(ログイン) 新規会員登録