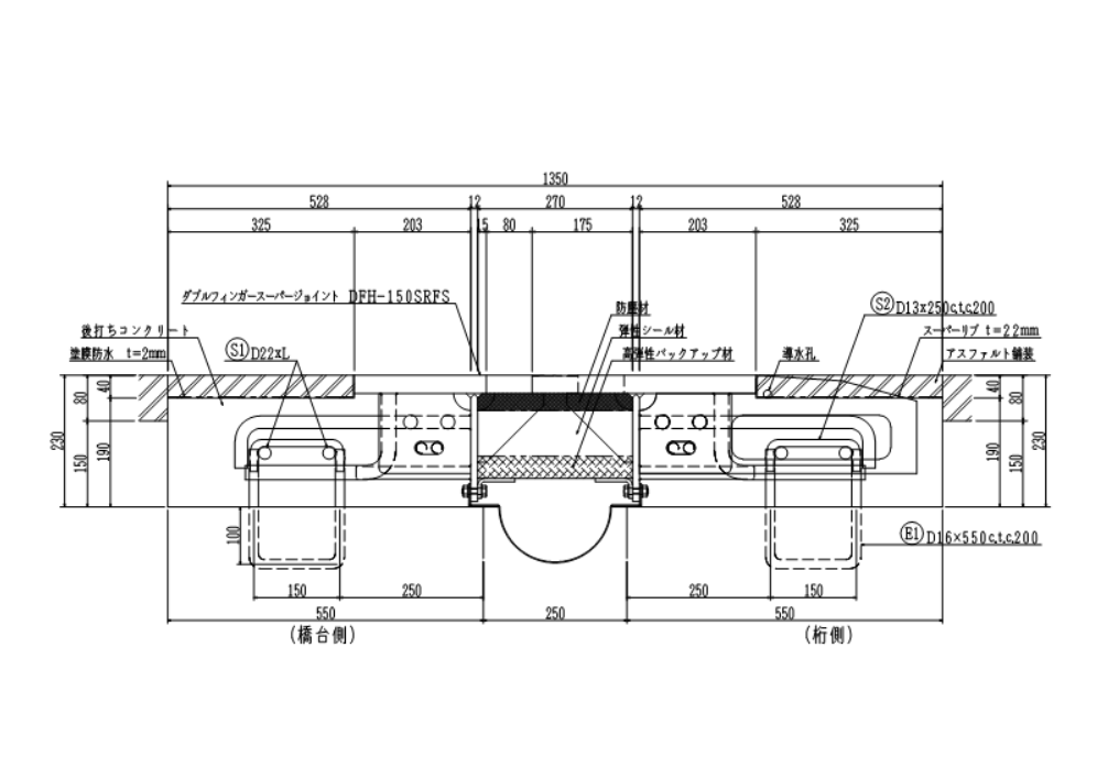
ダブルフィンガースーパージョイント(DFH-SQ型)
2026/02/02 更新提供可能地域
北海道 東北 関東 北陸 中部 近畿 中国 四国 九州 沖縄
| 型番 | 質量 (kg/1.8m) |
伸縮量 常時性能 橋軸方向 (mm) |
伸縮量 常時性能 橋軸直角方向 (mm) |
許容移動量 地震時性能 橋軸方向 (mm) |
許容移動量 地震時性能 橋軸直角方向 (mm) |
標準遊間 中立温度時 (mm) |
最大床版遊間 最低温度時 (mm) |
対応可能斜角 (°) |
建設物価 (品目コード) |
土木コスト (掲載ページ) |
|---|---|---|---|---|---|---|---|---|---|---|
| DFH-SQ125(85°) | 494.0 | +62.5/-62.5 | +5.0/-5.0 | +72.5/-72.5 | +10/-10 | 255.7 | 318.2 | 82.5 | ||
| DFH-SQ150(85°) | 512.0 | +75/-75 | +5.0/-5.0 | +87.5/-87.5 | +10/-10 | 293.1 | 368.1 | 82.5 | ||
| DFH-SQ175(85°) | 548.0 | +87.5/-87.5 | +5.0/-5.0 | +97.5/-97.5 | +10/-10 | 330.4 | 417.9 | 82.5 | ||
| DFH-SQ200(85°) | 525.0 | +100/-100 | +5.0/-5.0 | +110/-110 | +10/-10 | 267.8 | 367.8 | 82.5 | ||
| DFH-SQ220(85°) | 508.0 | +110/-110 | +5.0/-5.0 | +120/-120 | +10/-10 | 267.7 | 377.7 | 82.5 | ||
| DFH-SQ125(80°) | 494.0 | +62.5/-62.5 | +5.0/-5.0 | +72.5/-72.5 | +10/-10 | 253.4 | 315.9 | 77.5 | ||
| DFH-SQ150(80°) | 512.0 | +75/-75 | +5.0/-5.0 | +87.5/-87.5 | +10/-10 | 290.4 | 365.4 | 77.5 | ||
| DFH-SQ175(80°) | 548.0 | +87.5/-87.5 | +5.0/-5.0 | +97.5/-97.5 | +10/-10 | 327.3 | 414.8 | 77.5 | ||
| DFH-SQ200(80°) | 525.0 | +100/-100 | +5.0/-5.0 | +110/-110 | +10/-10 | 264.2 | 364.2 | 77.5 | ||
| DFH-SQ220(80°) | 508.0 | +110/-110 | +5.0/-5.0 | +120/-120 | +10/-10 | 263.8 | 373.8 | 77.5 | ||
| DFH-SQ125(75°) | 494.0 | +62.5/-62.5 | +5.0/-5.0 | +72.5/-72.5 | +10/-10 | 249.6 | 312.1 | 72.5 | ||
| DFH-SQ150(75°) | 512.0 | +75/-75 | +5.0/-5.0 | +87.5/-87.5 | +10/-10 | 285.8 | 360.8 | 72.5 | ||
| DFH-SQ175(75°) | 548.0 | +87.5/-87.5 | +5.0/-5.0 | +97.5/-97.5 | +10/-10 | 332.0 | 419.5 | 72.5 | ||
| DFH-SQ200(75°) | 525.0 | +100/-100 | +5.0/-5.0 | +110/-110 | +10/-10 | 258.3 | 358.3 | 72.5 | ||
| DFH-SQ220(75°) | 508.0 | +110/-110 | +5.0/-5.0 | +120/-120 | +10/-10 | 257.2 | 367.2 | 72.5 | ||
| DFH-SQ125(70°) | 494.0 | +62.5/-62.5 | +5.0/-5.0 | +72.5/-72.5 | +10/-10 | 244.3 | 306.8 | 67.5 | ||
| DFH-SQ150(70°) | 512.0 | +75/-75 | +5.0/-5.0 | +87.5/-87.5 | +10/-10 | 279.5 | 354.5 | 67.5 | ||
| DFH-SQ175(70°) | 548.0 | +87.5/-87.5 | +5.0/-5.0 | +97.5/-97.5 | +10/-10 | 314.8 | 402.3 | 67.5 | ||
| DFH-SQ200(70°) | 525.0 | +100/-100 | +5.0/-5.0 | +110/-110 | +10/-10 | 250.0 | 350.0 | 67.5 | ||
| DFH-SQ220(70°) | 508.0 | +110/-110 | +5.0/-5.0 | +120/-120 | +10/-10 | 248.2 | 358.2 | 67.5 | ||
| DFH-SQ125(65°) | 494.0 | +62.5/-62.5 | +5.0/-5.0 | +72.5/-72.5 | +10/-10 | 237.5 | 300.0 | 62.5 | ||
| DFH-SQ150(65°) | 512.0 | +75/-75 | +5.0/-5.0 | +87.5/-87.5 | +10/-10 | 271.5 | 346.5 | 62.5 | ||
| DFH-SQ175(65°) | 548.0 | +87.5/-87.5 | +5.0/-5.0 | +97.5/-97.5 | +10/-10 | 305.5 | 393.0 | 62.5 | ||
| DFH-SQ200(65°) | 525.0 | +100/-100 | +5.0/-5.0 | +110/-110 | +10/-10 | 239.5 | 339.5 | 62.5 | ||
| DFH-SQ220(65°) | 508.0 | +110/-110 | +5.0/-5.0 | +120/-120 | +10/-10 | 236.7 | 346.7 | 62.5 | ||
| DFH-SQ125(60°) | 494.0 | +62.5/-62.5 | +5.0/-5.0 | +72.5/-72.5 | +10/-10 | 229.4 | 291.9 | 57.5 | ||
| DFH-SQ150(60°) | 512.0 | +75/-75 | +5.0/-5.0 | +87.5/-87.5 | +10/-10 | 261.8 | 336.8 | 57.5 | ||
| DFH-SQ175(60°) | 548.0 | +87.5/-87.5 | +5.0/-5.0 | +97.5/-97.5 | +10/-10 | 294.3 | 381.8 | 57.5 | ||
| DFH-SQ200(60°) | 525.0 | +100/-100 | +5.0/-5.0 | +110/-110 | +10/-10 | 226.8 | 326.8 | 57.5 | ||
| DFH-SQ220(60°) | 508.0 | +110/-110 | +5.0/-5.0 | +120/-120 | +10/-10 | 222.8 | 332.8 | 57.5 |
- 準拠している仕様
- NEXCO 首都高速道路 阪神高速道路 福岡北九州高速道路 名古屋高速道路 東北地方整備局 北海道開発局 石川県
- 設置区分
- 車道用 歩道用 縦目地
- タイプ
- 荷重支持型 突合せ型 埋設型
- 装備
- 積雪地対応 二次止水 地覆止水
- 適用
- コンクリート橋用 鋼橋用 鋼床版用
- 構造性
- ・表面フェイスプレートは両側歯型のフィンガーウェーブ形状(商標登録済)。
・主要構造材は鋼材(SM400A)を使用し、アンカーバーは強固なスタッド溶接による一体化構造。
・一つ一つの櫛歯下面にリブプレートを配置しフェースプレートのたわみ変形を防ぐ構造。
・北海道開発局仕様に準拠したスノープラウ誘導板を装着。
- 耐久性
- ・凍結防止剤や雨水による鋼材腐食を防ぐことを目的とし、鋼材面には高防食加工の<アルミニウムマグネシウム合金溶射>を全面に施す。
- 走行性
- ・遊間部が歯型形状のため、車両走行時に騒音・振動が起き難く走行性に優れる。
- 止水性
- ・伸縮装置遊間部に防塵層を設けることで土砂等が詰まらない構造とすることで止水層を保護する構造。
・伸縮装置本体内臓一次止水材の他、長期止水を目的とする二次止水材「ダブル止水ユニット」を標準装備。
- 環境性(騒音)
- ・遊間部が歯型形状のため、車両走行時に騒音・振動が起き難い。
・内蔵する止水材と二次止水材が下へ抜ける音を低減。
- 施工性
- ・専用治工具により、現場温度の補正設定が可能。
・専用治工具により、据付高さ設定が容易。
・1800mmが標準製品で取り扱いが容易。
- 維持管理性
- ・耐久性に優れ、維持管理費の低減が可能。
・本体下面、二次止水材「ダブル止水ユニット」により長期止水性が良好。
・本体損傷となると後打ちコンクリートからの全取替となる。
- 推定耐用年数(参考値)
- 40年を推定(参考値)
発売初期(2009年)に設置された製品が、現在においても問題なく供用されていることが確認されている(2025年現在16年経過)。
ベースとなるDF型は大阪工業大学実験センターにおいて荷重200kNによる200万回の疲労試験(2002年実施)をクリア 。一方向一車線当たり日大型車通行量4,500台での耐用年数40年以上の性能を確認している。但し、実際の使用環境によって耐用年数は異なることがある。
- 経済性(初期コスト)
- お問い合わせください。
- 経済性(LCC)
- お問い合わせください。