比較資料
カートへ入れる
比較表
作成する
カートを
空にする

吊らない天井 耐震構造型「タンゴ天井」

2026/04/14 更新
  • 吊らない天井 耐震構造型「タンゴ天井」
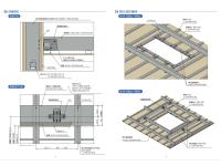
  • 適用例(正面図A)
  • 適用例(平面図B ~ D)
  • 適用例(詳細図 E)

概要

コーナーかしめ角形鋼を野縁受け・野縁材として使用。間仕切に亜鉛めっき鋼板切板を補強板として取り付け、端部固定金具を固定することにより、耐震構造型となっている。PB12.5㎜+PB12.5㎜+照明2㎏/㎡(合計19.0㎏/㎡)で最大天井幅3220㎜が可能。様々な建物の耐震化改修工事にも活用できる。(但し、既設間仕切壁はJISまたは強力型角型間仕切下地材とする。)

続きを見る

お問い合わせ
お気に入りに登録
カートへ入れる

特徴

配管やダクト等が多くて吊ボルトで吊りにくい場所やふところがある場合、両側の壁に端部固定金具を取り付けて角型野縁受け・角型野縁を固定することで強固な耐震天井を構築する。

公的評価番号等

日本産業規格 TC 0616001

カタログ

「吊らない天井」 タンゴ天井

会社情報

会社名
(株)佐藤型鋼製作所
TEL
082-237-1962
企業情報
公式サイト

このカテゴリーでよく比較される資材

!

エラーが発生しました。

次のいずれかの理由が考えられます。

比較可能な数量を超えたため
カートに追加できませんでした。
比較できる点数は20点までです。
「工種・工法」と「資材」を同時に
比較することはできません。
カート内を整理してご利用ください。
2点以上をカートに追加してください。
カート内容を確認する カートを空にする
!

カートへの追加
ありがとうございます。

会員登録をすれば、
カートに入れた製品の
比較表のダウンロードができます。

会員の方はこちら(ログイン) 新規会員登録
!

お気に入り登録
ありがとうございます。

会員登録をすれば、マイページより
いつでもお気に入り登録した商品を
見返すことができます。

会員の方はこちら(ログイン) 新規会員登録